Details
Lewdown
Okehampton - Devon
£695,000
(Sale Agreed)
Description
Character, well presented 5 bedroom, 3 reception room house in lawned and landscaped gardens. Buildings with potential. 1.7 acres of pasture paddocks. Easily accessible, edge of village location. Far reaching panoramic countryside views. No onward chain.
Downhayes is in an accessible location on the edge of Lewdown and approximately 3 miles to the south east of the A30 at Broadwoodwidger which leads onto the M5 at Exeter. Lewdown offers a village store, public house and primary school. Lifton is 4 miles to the west which offers two public houses, village shop with a post office , primary school and Strawberry Fields farm shop. Launceston is 9 miles to the west; Exeter is 33 miles to the east and Plymouth 26 miles to the south.
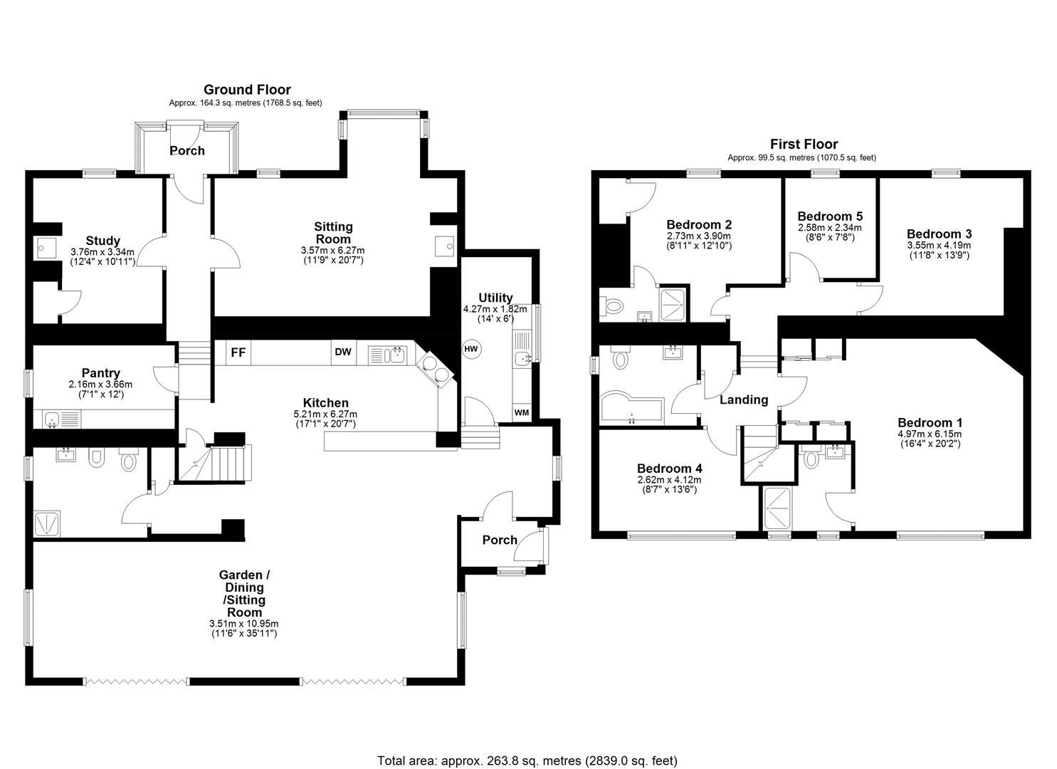
Downhayes was renovated 8 years ago providing spacious and flexible family living whilst maintaining its original character and charm, including feature fireplaces and exposed beams and the addition of a large garden room on the rear of the house which enjoys spectacular far reaching views over the surrounding countryside. The spacious and very well presented accommodation benefits from mainly uPVC double glazed windows, bifold powdered coated aluminium doors, oil fired central heating and briefly comprises: Entrance Porch, Utility Room; Fitted base units under black granite effect worksurfaces, stainless steel sink and drainer, space and plumbing for washing machine and tumble dryer and upright freezer, Grant boiler pressurised hot water tank (Solar & Heat Pump ready). Garden room, dining living Area; a triple aspect room, windows to the side and two pairs of bi-fold doors to the rear which open to let the outside in, whilst taken in the outstanding views. Tiled floor. Staircase rises to the first floor; Kitchen area; fitted wall and base units under Oak worksurfaces, stainless steel sink and drainer, built in dishwasher, space for American style fridge / freezer, inglenook fireplace housing the Everhot range cooker with 3 ovens, range style hob and 3 ring induction hob. Cloakroom area; coat hooks and shoe shelves, understair storage cupboard housing the manifold for the underfloor heating which is throughout the living / dining garden room, kitchen and wet room. Wet Room; tiled walls and Altro floor, shower, wash basin, bidet, w/c. Pantry; base units under black granite effect worksurface, stainless steel sink and drainer and slate flagstone floor. Entrance Hall; Front porch; Study / Snug; feature inglenook fireplace with original cloam bread oven, woodburning stove, beamed ceiling and window the front. Sitting Room; inglenook fireplace, cloam oven, Morso woodburning stove, beamed ceiling and windows to the front.
On the First Floor; Split level landing, airing cupboard. Fitted wardrobes window to the front enjoying far reaching views. Ensuite; shower enclosure with fully tiled walls, vanity unit with wash hand basin and w/c. Bedroom 4 / Study; a double room with window to the rear. Family Bathroom; ‘P’ shaped bath with shower above, w/c, vanity unit with wash basin, heated towel rail, airing cupboard. Bedroom 2; double room, exposed beams, window to the front, En suite; fully tiled shower enclosure, vanity unit, wash basin, w/c. Bedroom 5; a single / bunk room window to the front. Bedroom 3; a double room, exposed beams, window to the front.
Outside
At the rear of the house is a large, raised tiled terrace which runs along the full length of the house and is ideal for alfresco dining and entertaining whilst enjoying the spectacular views. On the lower terrace is a large lawn surrounded by well stocked and mature shrub beds. To the side of the house is a large vegetable and fruit garden with enclosed fruit cages and an Aluminium framed greenhouse: 3.66m x 3.05m (12’ x 10’). Continuing to a further lawned terrace, leading to the front lawned terrace which is interspersed with Apple, Plum and Cherry trees.
Buildings
Potential for conversion, planning consent was granted and has now lapsed for a holiday cottage and stables.
Store / Workshop (2.68m x 5.65m (8'9" x 18'6" ))
Store (3.21m x 3.64m (10'6" x 11'11" ))
Workshop / Store (7.62m x 5.27m (24'11" x 17'3" ))
Store Room (3.31m x 3.16m (10'10" x 10'4" ))
Store / Workshop (2.80m x 4.81m (9'2" x 15'9" ))
Adjoining Shower Room
Garage (7.44m x 4.81m (24'4" x 15'9" ))
The Land
The land extends to approximately 1.7 acres and is divided into 2 grassland paddocks within traditional Devon bank hedges. Water troughs which are fed from the well.
Services and Information
Water – Mains to the house. Well water is used for toilet flushing, watering the garden and water troughs in the paddocks.
Drainage- Mains
Electricity – Mains Separate supply to the house & Buildings
Heating – Oil central heating
Telephone & Broadband –FTTC (fibre to cabinet) checker.ofcom.org.uk/
Mobile Availability – checker.ofcom.org.uk
Council Tax Currently Band – D
EPC – D60
Construction – Stone, Cob & Rendered block
Local Authority
West Devon Borough Council, Kilworthy Park, Tavistock, PL19 0BZ 01822 813600.
Tenure
The property is offered for sale freehold with vacant possession on completion.
Viewing Arrangements
Strictly by appointment with D. R. Kivell Country Property 01822 810810
Viewing
Please contact us on 01822 810810 if you wish to arrange a viewing appointment for this property, or require further information.
Disclaimer
D. R. Kivell Country Property endeavour to maintain accurate depictions of properties in Virtual Tours, Floor Plans and descriptions, however, these are intended only as a guide and purchasers must satisfy themselves by personal inspection.
Character, well presented 5 bedroom, 3 reception room house in lawned and landscaped gardens. Buildings with potential. 1.7 acres of pasture paddocks. Easily accessible, edge of village location. Far reaching panoramic countryside views. No onward chain.
Downhayes is in an accessible location on the edge of Lewdown and approximately 3 miles to the south east of the A30 at Broadwoodwidger which leads onto the M5 at Exeter. Lewdown offers a village store, public house and primary school. Lifton is 4 miles to the west which offers two public houses, village shop with a post office , primary school and Strawberry Fields farm shop. Launceston is 9 miles to the west; Exeter is 33 miles to the east and Plymouth 26 miles to the south.
Downhayes was renovated 8 years ago providing spacious and flexible family living whilst maintaining its original character and charm, including feature fireplaces and exposed beams and the addition of a large garden room on the rear of the house which enjoys spectacular far reaching views over the surrounding countryside. The spacious and very well presented accommodation benefits from mainly uPVC double glazed windows, bifold powdered coated aluminium doors, oil fired central heating and briefly comprises: Entrance Porch, Utility Room; Fitted base units under black granite effect worksurfaces, stainless steel sink and drainer, space and plumbing for washing machine and tumble dryer and upright freezer, Grant boiler pressurised hot water tank (Solar & Heat Pump ready). Garden room, dining living Area; a triple aspect room, windows to the side and two pairs of bi-fold doors to the rear which open to let the outside in, whilst taken in the outstanding views. Tiled floor. Staircase rises to the first floor; Kitchen area; fitted wall and base units under Oak worksurfaces, stainless steel sink and drainer, built in dishwasher, space for American style fridge / freezer, inglenook fireplace housing the Everhot range cooker with 3 ovens, range style hob and 3 ring induction hob. Cloakroom area; coat hooks and shoe shelves, understair storage cupboard housing the manifold for the underfloor heating which is throughout the living / dining garden room, kitchen and wet room. Wet Room; tiled walls and Altro floor, shower, wash basin, bidet, w/c. Pantry; base units under black granite effect worksurface, stainless steel sink and drainer and slate flagstone floor. Entrance Hall; Front porch; Study / Snug; feature inglenook fireplace with original cloam bread oven, woodburning stove, beamed ceiling and window the front. Sitting Room; inglenook fireplace, cloam oven, Morso woodburning stove, beamed ceiling and windows to the front.
On the First Floor; Split level landing, airing cupboard. Fitted wardrobes window to the front enjoying far reaching views. Ensuite; shower enclosure with fully tiled walls, vanity unit with wash hand basin and w/c. Bedroom 4 / Study; a double room with window to the rear. Family Bathroom; ‘P’ shaped bath with shower above, w/c, vanity unit with wash basin, heated towel rail, airing cupboard. Bedroom 2; double room, exposed beams, window to the front, En suite; fully tiled shower enclosure, vanity unit, wash basin, w/c. Bedroom 5; a single / bunk room window to the front. Bedroom 3; a double room, exposed beams, window to the front.
Outside
At the rear of the house is a large, raised tiled terrace which runs along the full length of the house and is ideal for alfresco dining and entertaining whilst enjoying the spectacular views. On the lower terrace is a large lawn surrounded by well stocked and mature shrub beds. To the side of the house is a large vegetable and fruit garden with enclosed fruit cages and an Aluminium framed greenhouse: 3.66m x 3.05m (12’ x 10’). Continuing to a further lawned terrace, leading to the front lawned terrace which is interspersed with Apple, Plum and Cherry trees.
Buildings
Potential for conversion, planning consent was granted and has now lapsed for a holiday cottage and stables.
Store / Workshop (2.68m x 5.65m (8'9" x 18'6" ))
Store (3.21m x 3.64m (10'6" x 11'11" ))
Workshop / Store (7.62m x 5.27m (24'11" x 17'3" ))
Store Room (3.31m x 3.16m (10'10" x 10'4" ))
Store / Workshop (2.80m x 4.81m (9'2" x 15'9" ))
Adjoining Shower Room
Garage (7.44m x 4.81m (24'4" x 15'9" ))
The Land
The land extends to approximately 1.7 acres and is divided into 2 grassland paddocks within traditional Devon bank hedges. Water troughs which are fed from the well.
Services and Information
Water – Mains to the house. Well water is used for toilet flushing, watering the garden and water troughs in the paddocks.
Drainage- Mains
Electricity – Mains Separate supply to the house & Buildings
Heating – Oil central heating
Telephone & Broadband –FTTC (fibre to cabinet) checker.ofcom.org.uk/
Mobile Availability – checker.ofcom.org.uk
Council Tax Currently Band – D
EPC – D60
Construction – Stone, Cob & Rendered block
Local Authority
West Devon Borough Council, Kilworthy Park, Tavistock, PL19 0BZ 01822 813600.
Tenure
The property is offered for sale freehold with vacant possession on completion.
Viewing Arrangements
Strictly by appointment with D. R. Kivell Country Property 01822 810810
Viewing
Please contact us on 01822 810810 if you wish to arrange a viewing appointment for this property, or require further information.
Disclaimer
D. R. Kivell Country Property endeavour to maintain accurate depictions of properties in Virtual Tours, Floor Plans and descriptions, however, these are intended only as a guide and purchasers must satisfy themselves by personal inspection.
Features
- 5 Bedroom House
- 3 Reception Rooms
- Very Well Presented
- Lawned & Landscaped Gardens
- 1.7 Acres of Paddocks
- Panoramic Countryside Views
Share

