Details
Holsworthy
Devon
£1,250,000
Description
Versatile country estate with a substantial 11 bedroom country house and 4 residential properties. Landscaped gardens, storage buildings. 31.24 Acres of woodland and meadows. Further land available.
Holsworthy is 3 miles to the west offering a range of individual shops, Waitrose supermarket, doctors, dentists, primary and secondary schools. The popular North Cornwall beach resort of Bude is 12 miles to the west.
Stapledon is a versatile country estate offering opportunities for multi-generational living, hospitality and lettings providing a significant income. The spacious eleven-bedroom house offers great flexibility as one large house or easily divided into two self-contained dwellings. The cottages are located at the rear of the main house, being two pairs of well-presented semi-detached bungalows with full residential consent.
Stapledon House & Cottages are situated at the end of a long shared tamacadam, tree lined drive with farm land on either side. A gated entrance opens on to a private drive passing through the lawned gardens to the rear of the house and cottages.
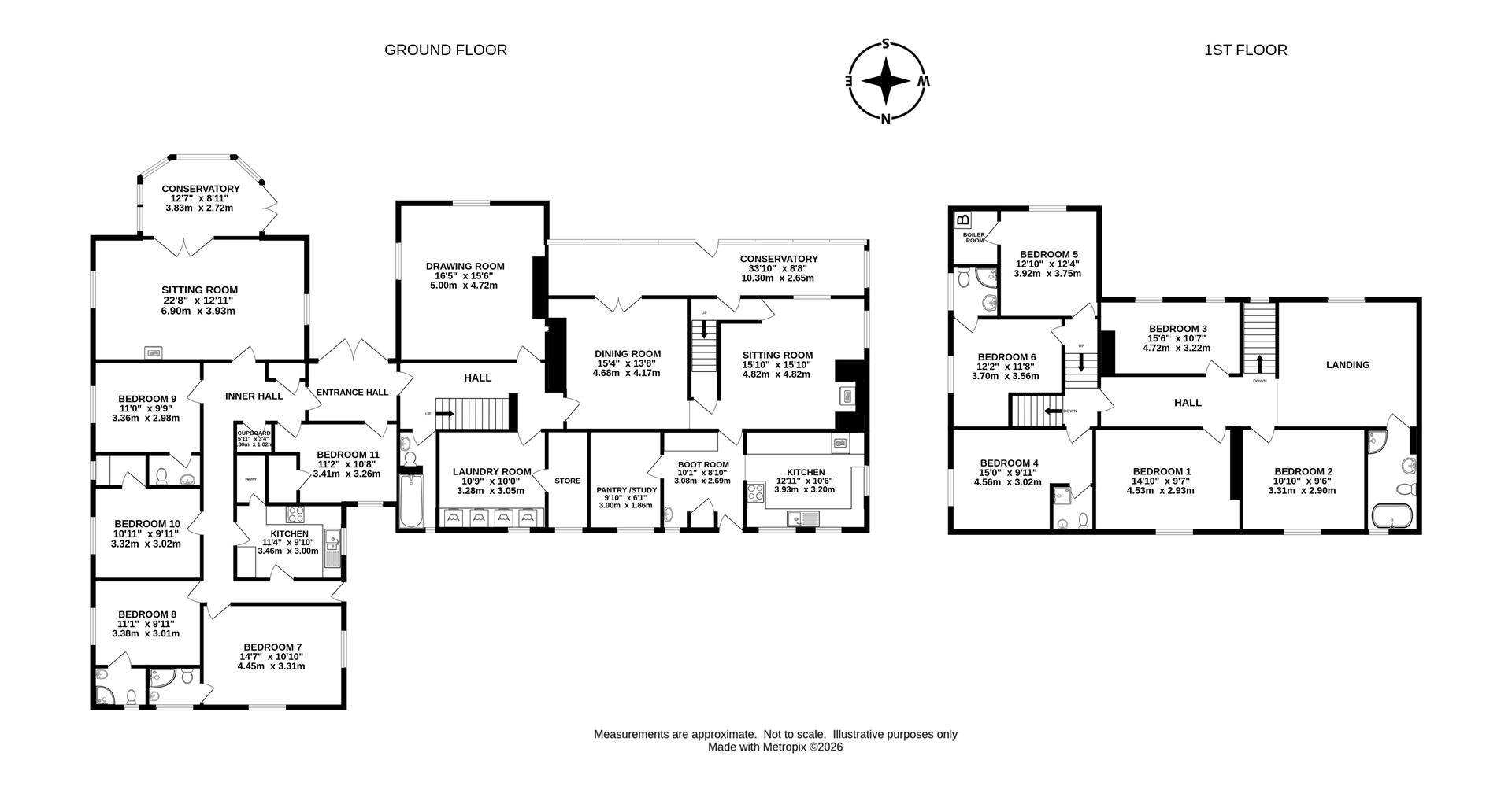
The main house comprises, the mainly two storey original part, with a more recent single storey extension. The whole house benefits from 11 bedrooms, and 4 main reception rooms and has an appealing 34’ conservatory.
The house benefits from LPG fired central heating and double glazed windows, briefly comprising; Entrance hall; Laundry room; adjoining store room. Dining room; French Doors to the conservatory; Sitting room; inglenook fireplace, woodburning stove, a dual aspect room, window to the conservatory and side. Utility Room; plumbing for washing machine / dishwasher, vanity unit, wash basin fitted wall and base units and door to the rear. Store room; Kitchen/Breakfast Room, dual aspect, fitted wall and base, black marble work surfaces with matching breakfast bar, splash backs and upstand, Samsung electric hob with extractor hob above, in set hot point electric double oven and grill. Large landing with seating area, window to the front overlooking the garden. Family Bathroom; Double ended bath, shower enclosure, w/c, wash basin and heated towel rail. A further 5 double bedrooms, 2 with ensuite shower rooms A further bedroom / Study; Store / Boiler room; Vaillant LPG gas boiler.
Stapledon House Annexe
Inner Hall, Sitting / Dining room; dual aspect room with windows to either side overlooking the gardens. Dunsley woodburning stove on a slate hearth. French doors open to the conservatory, triple aspect overlooking the front garden, French doors open onto a gravelled seating area to the side. Annexe Bedroom 1 and adjoining dressing room with ensuite potential. Walk in airing cupboard; Bedroom 2 / Dining Room. Cloak Room: Vanity unit, wash basin, w/c. Bedroom 3 has an adjoining dressing room. Bedroom 4 has an ensuite shower room, Bedroom 5; a dual aspect room with an ensuite, shower room. Kitchen; fitted wall and base units, Hot Point Ultima electric cooker, extractor hood above. Utility / Larder, space for fridge freezer, dishwasher, fitted wall units and worksurface.
Stapledon Cottages
The residential cottages are located at the rear of the house, all benefitting from uPVC double glazing and electric heating and briefly comprise:
Number 8
Open plan Kitchen/sitting /dining room, shower room, 1 double and 1 single bedroom
Number 9
Open plan Kitchen/sitting /dining room, shower room, 2 double bedrooms.
Number 10
Open plan Living Room/Kitchen, Bathroom and a first floor double bedroom.
Number 11
Kitchen / Dining Room, sitting room, shower room and 2 double bedrooms.
Buildings
Machinery Store / Workshop: (8.90m x 8.90m (29'2" x 29'2" ))
Steel portal frame with a concrete floor.
Adjoining Machinery Store / Workshop (9.10m x 8.90m (29'10" x 29'2" ))
Steel portal frame, concrete floor and power connected.
On the roof Solar array with a feed in tariff.
Lean to Log / General Purpose Store (4.50m x 3.00m (14'9" x 9'10" ))
The Land
The land extends to approximately 31 acres, which is mainly mature native deciduous woodland, ponds and wildlife areas with potential for grazing paddocks.
Services and Information
Water – Mains
Drainage – Shared sewage treatment
Electricity – Mains
Heating – House & Annexe LPG gas fired central heating
Cottages – Electric Heating
Telephone & Broadband – Openreach connection. checker.ofcom.org.uk/
Mobile Availability - checker.ofcom.org.uk
Renewables – On the roof of the house photovoltaic solar array with feed in tariff (FIT)
Council Tax – Stapledon House Band G
The Cottages Band A
EPC – Stapledon House E42
Cottage 8 – D57
Cottage 9 - D58
Cottage 10 -D57
Cottage 11 -D65
Construction – Stapledon House – Stone and Cavity wall extension
Cottages – Cavity wall
Local Authority
Torridge District Council, Riverbank House, Bideford, Devon EX39 2QG.
01237 428700.
Tenure
The property is offered for sale freehold
Viewing Arrangements
Strictly by appointment with D. R. Kivell Country Property 018 22 810 810
Viewing
Please contact us on 01822 810810 if you wish to arrange a viewing appointment for this property, or require further information.
Disclaimer
D. R. Kivell Country Property endeavour to maintain accurate depictions of properties in Virtual Tours, Floor Plans and descriptions, however, these are intended only as a guide and purchasers must satisfy themselves by personal inspection.
Versatile country estate with a substantial 11 bedroom country house and 4 residential properties. Landscaped gardens, storage buildings. 31.24 Acres of woodland and meadows. Further land available.
Holsworthy is 3 miles to the west offering a range of individual shops, Waitrose supermarket, doctors, dentists, primary and secondary schools. The popular North Cornwall beach resort of Bude is 12 miles to the west.
Stapledon is a versatile country estate offering opportunities for multi-generational living, hospitality and lettings providing a significant income. The spacious eleven-bedroom house offers great flexibility as one large house or easily divided into two self-contained dwellings. The cottages are located at the rear of the main house, being two pairs of well-presented semi-detached bungalows with full residential consent.
Stapledon House & Cottages are situated at the end of a long shared tamacadam, tree lined drive with farm land on either side. A gated entrance opens on to a private drive passing through the lawned gardens to the rear of the house and cottages.
The main house comprises, the mainly two storey original part, with a more recent single storey extension. The whole house benefits from 11 bedrooms, and 4 main reception rooms and has an appealing 34’ conservatory.
The house benefits from LPG fired central heating and double glazed windows, briefly comprising; Entrance hall; Laundry room; adjoining store room. Dining room; French Doors to the conservatory; Sitting room; inglenook fireplace, woodburning stove, a dual aspect room, window to the conservatory and side. Utility Room; plumbing for washing machine / dishwasher, vanity unit, wash basin fitted wall and base units and door to the rear. Store room; Kitchen/Breakfast Room, dual aspect, fitted wall and base, black marble work surfaces with matching breakfast bar, splash backs and upstand, Samsung electric hob with extractor hob above, in set hot point electric double oven and grill. Large landing with seating area, window to the front overlooking the garden. Family Bathroom; Double ended bath, shower enclosure, w/c, wash basin and heated towel rail. A further 5 double bedrooms, 2 with ensuite shower rooms A further bedroom / Study; Store / Boiler room; Vaillant LPG gas boiler.
Stapledon House Annexe
Inner Hall, Sitting / Dining room; dual aspect room with windows to either side overlooking the gardens. Dunsley woodburning stove on a slate hearth. French doors open to the conservatory, triple aspect overlooking the front garden, French doors open onto a gravelled seating area to the side. Annexe Bedroom 1 and adjoining dressing room with ensuite potential. Walk in airing cupboard; Bedroom 2 / Dining Room. Cloak Room: Vanity unit, wash basin, w/c. Bedroom 3 has an adjoining dressing room. Bedroom 4 has an ensuite shower room, Bedroom 5; a dual aspect room with an ensuite, shower room. Kitchen; fitted wall and base units, Hot Point Ultima electric cooker, extractor hood above. Utility / Larder, space for fridge freezer, dishwasher, fitted wall units and worksurface.
Stapledon Cottages
The residential cottages are located at the rear of the house, all benefitting from uPVC double glazing and electric heating and briefly comprise:
Number 8
Open plan Kitchen/sitting /dining room, shower room, 1 double and 1 single bedroom
Number 9
Open plan Kitchen/sitting /dining room, shower room, 2 double bedrooms.
Number 10
Open plan Living Room/Kitchen, Bathroom and a first floor double bedroom.
Number 11
Kitchen / Dining Room, sitting room, shower room and 2 double bedrooms.
Buildings
Machinery Store / Workshop: (8.90m x 8.90m (29'2" x 29'2" ))
Steel portal frame with a concrete floor.
Adjoining Machinery Store / Workshop (9.10m x 8.90m (29'10" x 29'2" ))
Steel portal frame, concrete floor and power connected.
On the roof Solar array with a feed in tariff.
Lean to Log / General Purpose Store (4.50m x 3.00m (14'9" x 9'10" ))
The Land
The land extends to approximately 31 acres, which is mainly mature native deciduous woodland, ponds and wildlife areas with potential for grazing paddocks.
Services and Information
Water – Mains
Drainage – Shared sewage treatment
Electricity – Mains
Heating – House & Annexe LPG gas fired central heating
Cottages – Electric Heating
Telephone & Broadband – Openreach connection. checker.ofcom.org.uk/
Mobile Availability - checker.ofcom.org.uk
Renewables – On the roof of the house photovoltaic solar array with feed in tariff (FIT)
Council Tax – Stapledon House Band G
The Cottages Band A
EPC – Stapledon House E42
Cottage 8 – D57
Cottage 9 - D58
Cottage 10 -D57
Cottage 11 -D65
Construction – Stapledon House – Stone and Cavity wall extension
Cottages – Cavity wall
Local Authority
Torridge District Council, Riverbank House, Bideford, Devon EX39 2QG.
01237 428700.
Tenure
The property is offered for sale freehold
Viewing Arrangements
Strictly by appointment with D. R. Kivell Country Property 018 22 810 810
Viewing
Please contact us on 01822 810810 if you wish to arrange a viewing appointment for this property, or require further information.
Disclaimer
D. R. Kivell Country Property endeavour to maintain accurate depictions of properties in Virtual Tours, Floor Plans and descriptions, however, these are intended only as a guide and purchasers must satisfy themselves by personal inspection.
Features
- 31 Acre Country Estate
- 11 Bedroom House
- Annexe
- 4 Residential Cottages
- Woodland
- Ponds
- Meadows
- Wildlife Areas
- Further Land Available
Share

