Details
Bere Alston
Yelverton - Devon
£695,000
Description
Substantial, very well-presented 5 bedroom detached barn conversion providing comfortable and flexible family living. Set in enclosed lawned gardens, in a quiet location on the edge of the popular Bere Peninsula.
The Mazzard is situated in a quiet, rural setting approximately 2 miles to the northwest of Bere Alston village which is located on the edge of the Tamar Valley an area of natural outstanding beauty. Bere Alston offers a Village store, Post office/store, public house, butchers, medical centre and train station which connects to Plymouth and in turn London. The unspoilt estuary village of Bere Ferrers is 4 miles to the south. The popular ancient stannary town of Tavistock lies approximately 5 miles northeast boasts an excellent selection of individual shops, supermarkets, restaurants, public houses and other local amenities, as well as both state and excellent private education
The property is approached over a long tarmac shared entrance drive. The Mazzard is a very well presented and spacious 5 bedroom character barn conversion which has been finished to a very high standard. The accommodation is complemented by oak staircases and flooring to the living areas, granite fireplace, modern fitted kitchen, vaulted ceilings with exposed ‘A’ frame trusses, Solar panels and Air source heat pump heating.
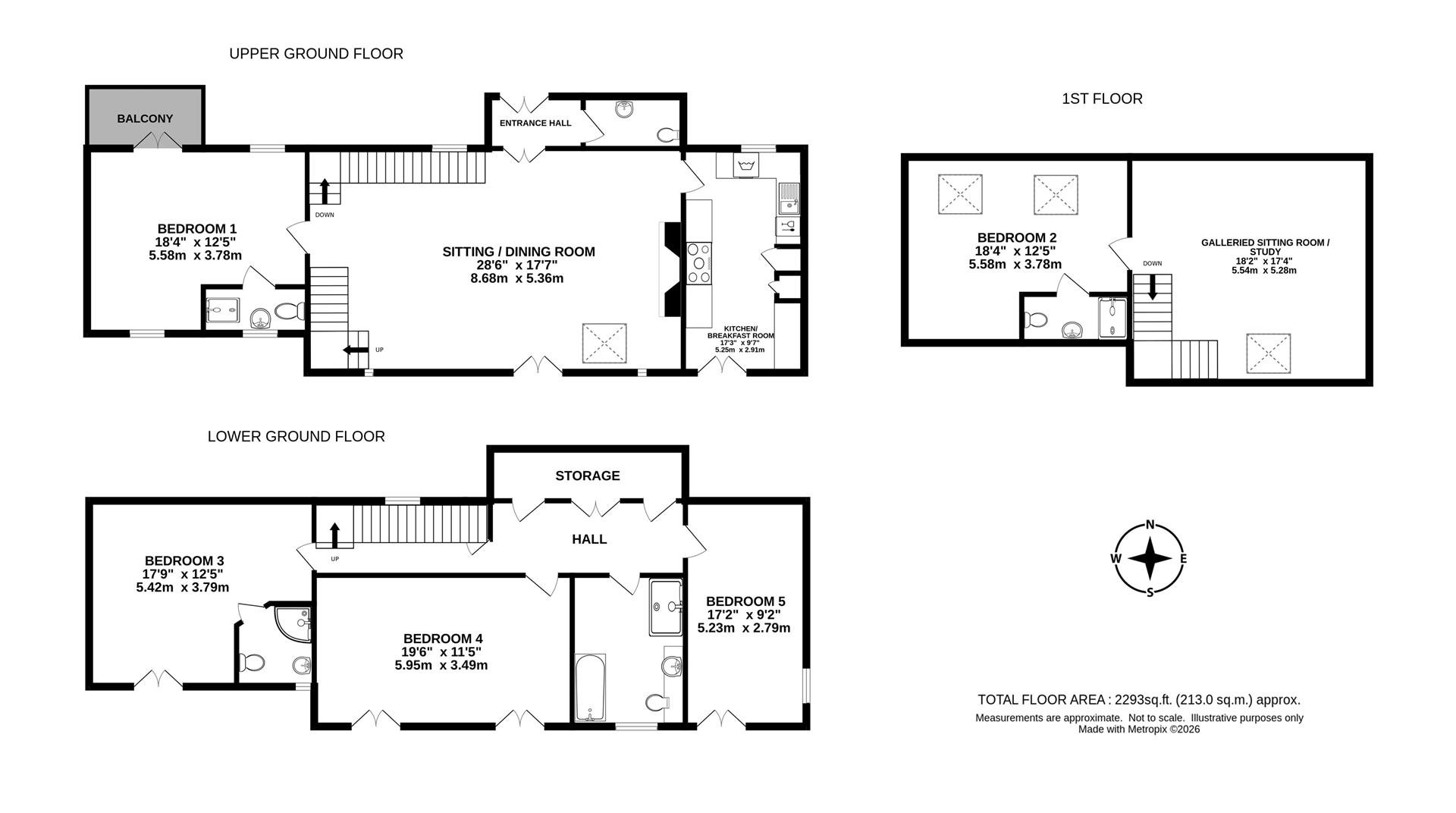
The accommodation briefly comprises: Entrance Hall, cloakroom, sitting/dining room, kitchen/breakfast room, Master bedroom with en-suite shower room. On the first floor: Mezzanine galleried living room with oak balustrades overlooking the sitting room and bedroom 2 with en-suite shower room. On the lower Ground floor: 3 double bedrooms and a family bathroom with under floor heating throughout
Outside
At the front of the house is large recently brick paved parking and seating area. To the rear of the house are enclosed lawned garden with a paved patio which is ideal for alfresco dining and entertaining, enclosed within picket fencing. Adjacent to the garden and to the side of the house is a large lawned area with an aluminium framed green house and solar array.
Oak Framed Carport / Workshop
Recently constructed oak framed car port with an enclosed workshop/store
Double Carport (5.55m x 6.00m (18'2" x 19'8"))
Workshop / Store (2.95m x 6.00m (9'8" x 19'8"))
Services & Information
Water – Mains
Drainage – Shared sewage treatment plant
Electricity – Mains
Heating – Air source heat pump - Woodburning Stove
Telephone & Broadband – Airband (FTTP) checker.ofcom.org.uk
Mobile Availability - checker.ofcom.org.uk
Renewable Energy – Solar Photovoltaic Panels (FIT) & Storage batteries
Charging – EV Charging point
Council Tax Band - F
EPC – A92
Construction – Stone
Local Authority
West Devon Borough Council
Kilworthy Park, Tavistock, Devon PL19 0BZ 01822 813600
Tenure
The property is offered for sale freehold with vacant possession on completion.
Viewing Arrangements
Strictly by appointment with D. R. Kivell Country Property 01822 810810.
Agents Notes
None of the services or appliances, plumbing, heating or electrical installations have been tested by the selling agent. Any maps used on the details are to assist identification of the property only and are not an indication of the actual surroundings, which may have changed since the map was printed. None of the statements contained in these particulars as to this property are to be relied on as statements or representations of fact. There are numerous power points throughout the properties although not individually listed. All figures, measurements, floor plans and maps are for guidance purposes only. They are prepared and issued in good faith and are intended to give a fair description of the property but do not constitute any part of any offer or contract. The property is sold subject to and with the benefit of all outgoings, rights of way, easements and wayleaves there may be, whether mentioned in these general remarks and stipulations or particulars of sale or not.
Viewing
Please contact us on 01822 810810 if you wish to arrange a viewing appointment for this property, or require further information.
Disclaimer
D. R. Kivell Country Property endeavour to maintain accurate depictions of properties in Virtual Tours, Floor Plans and descriptions, however, these are intended only as a guide and purchasers must satisfy themselves by personal inspection.
Substantial, very well-presented 5 bedroom detached barn conversion providing comfortable and flexible family living. Set in enclosed lawned gardens, in a quiet location on the edge of the popular Bere Peninsula.
The Mazzard is situated in a quiet, rural setting approximately 2 miles to the northwest of Bere Alston village which is located on the edge of the Tamar Valley an area of natural outstanding beauty. Bere Alston offers a Village store, Post office/store, public house, butchers, medical centre and train station which connects to Plymouth and in turn London. The unspoilt estuary village of Bere Ferrers is 4 miles to the south. The popular ancient stannary town of Tavistock lies approximately 5 miles northeast boasts an excellent selection of individual shops, supermarkets, restaurants, public houses and other local amenities, as well as both state and excellent private education
The property is approached over a long tarmac shared entrance drive. The Mazzard is a very well presented and spacious 5 bedroom character barn conversion which has been finished to a very high standard. The accommodation is complemented by oak staircases and flooring to the living areas, granite fireplace, modern fitted kitchen, vaulted ceilings with exposed ‘A’ frame trusses, Solar panels and Air source heat pump heating.
The accommodation briefly comprises: Entrance Hall, cloakroom, sitting/dining room, kitchen/breakfast room, Master bedroom with en-suite shower room. On the first floor: Mezzanine galleried living room with oak balustrades overlooking the sitting room and bedroom 2 with en-suite shower room. On the lower Ground floor: 3 double bedrooms and a family bathroom with under floor heating throughout
Outside
At the front of the house is large recently brick paved parking and seating area. To the rear of the house are enclosed lawned garden with a paved patio which is ideal for alfresco dining and entertaining, enclosed within picket fencing. Adjacent to the garden and to the side of the house is a large lawned area with an aluminium framed green house and solar array.
Oak Framed Carport / Workshop
Recently constructed oak framed car port with an enclosed workshop/store
Double Carport (5.55m x 6.00m (18'2" x 19'8"))
Workshop / Store (2.95m x 6.00m (9'8" x 19'8"))
Services & Information
Water – Mains
Drainage – Shared sewage treatment plant
Electricity – Mains
Heating – Air source heat pump - Woodburning Stove
Telephone & Broadband – Airband (FTTP) checker.ofcom.org.uk
Mobile Availability - checker.ofcom.org.uk
Renewable Energy – Solar Photovoltaic Panels (FIT) & Storage batteries
Charging – EV Charging point
Council Tax Band - F
EPC – A92
Construction – Stone
Local Authority
West Devon Borough Council
Kilworthy Park, Tavistock, Devon PL19 0BZ 01822 813600
Tenure
The property is offered for sale freehold with vacant possession on completion.
Viewing Arrangements
Strictly by appointment with D. R. Kivell Country Property 01822 810810.
Agents Notes
None of the services or appliances, plumbing, heating or electrical installations have been tested by the selling agent. Any maps used on the details are to assist identification of the property only and are not an indication of the actual surroundings, which may have changed since the map was printed. None of the statements contained in these particulars as to this property are to be relied on as statements or representations of fact. There are numerous power points throughout the properties although not individually listed. All figures, measurements, floor plans and maps are for guidance purposes only. They are prepared and issued in good faith and are intended to give a fair description of the property but do not constitute any part of any offer or contract. The property is sold subject to and with the benefit of all outgoings, rights of way, easements and wayleaves there may be, whether mentioned in these general remarks and stipulations or particulars of sale or not.
Viewing
Please contact us on 01822 810810 if you wish to arrange a viewing appointment for this property, or require further information.
Disclaimer
D. R. Kivell Country Property endeavour to maintain accurate depictions of properties in Virtual Tours, Floor Plans and descriptions, however, these are intended only as a guide and purchasers must satisfy themselves by personal inspection.
Features
- Luxury Barn Conversion
- Very Well Presented
- High Standard of Finish
- 5 Double Bedrooms
- Enclosed Lawned Garden
- Oak Frame Car Port
- Solar Array
- Storage Batteries
- EV Charger
Share

