Details
Milton Abbot
Tavistock - Devon
(Sold)
Description
Most characterful 6 bedroom house with annexe potential in a quiet rural, easily accessible location. Lawned and landscaped gardens. Substantial traditional stone barn. Far reaching countryside views.
The property is located in the rural hamlet of Dunterton, 2 miles west of Milton Abbot village, where there is a public house and primary school. The historic stannary town of Tavistock is 9 miles to the southeast and Launceston is approximately 5 miles to the northwest. Plymouth is 23 miles to the southeast offering a comprehensive range of shopping, leisure facilities with cross channel ferry. Exeter is 45 miles to the East and provides access to the M5, international airport and a fast train to London Paddington.
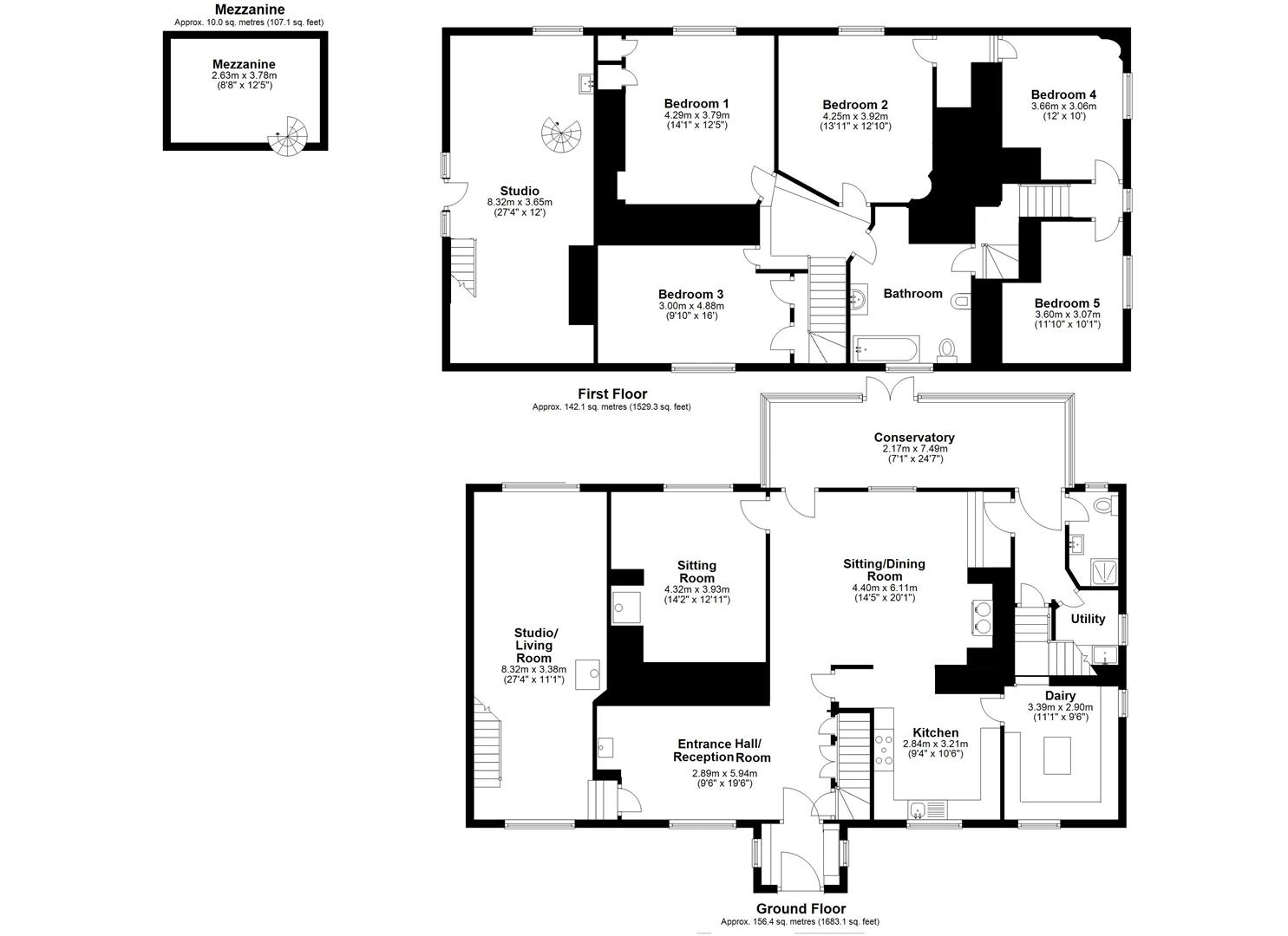
The House
Dunterton Barton occupies a quiet rural location with far reaching countryside views over the picturesque valley to Cornwall and Caradon Hill in the distance. The house offers spacious, most characterful family accommodation and the many character features include, slate flagstone floors, inglenook fireplaces, beamed ceilings and benefits from wood effect uPVC double glazed windows, oil fired central heating, woodburning stoves. The accommodation briefly comprises; Entrance porch, slate flagstone floor, granite trough, slate shelves. Entrance Hall / Sitting Room; slate floor, inglenook fireplace, woodburning stove and bread oven, window to the front with deep sill window seat, steps lead up to the studio. Sitting / Dining room; slate floor, beamed ceiling, large inglenook fireplace, oil fired Rayburn Nouvelle also providing domestic hot water and central heating, window to the conservatory with deep sill window seat. Kitchen; Slate flagstone floor, window the front overlooking the courtyard, beamed ceiling, fitted wall and base units under a polished granite worksurfaces, Britannia gas range cooker, extractor hood above, built in microwave, dishwasher, pantry / former dairy, a dual aspect room, slate flagstone floor, original slate shelving with cupboards below, fitted wall cupboards, central slate island table. Sitting Room; Inglenook fireplace and woodburning stove, beamed ceiling, window to the rear with deep sill window seat. Conservatory: The triple aspect conservatory is a real sun trap, double glazed windows enjoying far reaching views over the garden to the tors of Bodmin moor, French doors open onto the stone paved patio. Inner Hall; stairs to the first floor doors to the conservatory, sitting / dining room and further door to; Shower Room; shower enclosure, wash basin and w/c, Utility; Window to the side, Belfast sink, plumbing for washing machine, filtration for the private water supply. Studio / Sitting Room; dual aspect room with windows to the front and rear, multi-fuel burning stove, staircase rises to the first floor. Bedroom and seating area; dual aspect with window to the rear overlooking the garden and windows and door opens onto the path at the side of the house with far reaching views over the surrounding farmland to Dartmoor. Exposed ‘A’ frames and beams, wash hand basin and spiral staircase rises to the mezzanine area. From the Entrance Hall a staircase rises to a split level first floor. Bedroom 2; Window to the front courtyard, fitted wardrobes and exposed beams. Bedroom 1; Feature cast iron fireplace and surround, fitted wardrobes, window to the rear. Bedroom 3; Feature cast iron fireplace with decorative surround and window to the rear overlooking the garden, walk through passage way to Bedroom 4 and airing cupboard. Family Bathroom; Vanity unit with inset wash basin, bath, w/c, bidet, exposed beams and window to the front. Bedroom 4; Feature cast iron fireplace and surround, exposed ceiling beams, mezzanine storage area and window the side enjoying far reaching countryside views. Bedroom 5; Exposed ceiling beams and window the rear and landing and second staircase descends the inner hall.
Outside
The property is accessed over a shared entrance lane a gated entrance opens onto the cobbled courtyard, providing ample parking to the front of the barn and house. From the courtyard a path leads to the side of the house with lawn gardens and specimen shrubs and trees. Continuing to the rear lawned garden are borders stocked with flowering and evergreen shrubs and specimen trees. Steps lead down to the stone paved patio, front of the conservatory, ideal for the alfresco dining and entertaining whilst taking in the far-reaching views over the surrounding countryside to the tors of Bodmin moor beyond.
Buildings
Stone Barn: (11.58m x 4.84m (37'11" x 15'10" ))
Traditional stone construction
The ground floor is divided into 3 sections with cobbled floors:
Section 1:
Wooden stable door and uPVC double glazed windows to the front elevation.
Section 2:
Window opening to the rear and stables doors to the front elevation.
Section 3:
Log store, stable door to the front elevation.
On the first floor; Accessed from the steps to the side, large loft area, windows to the front and side
Traditional Barn: (4.65m x 2.75m (15'3" x 9'0" ))
Single Storey stone barn.
Services & Information
Water – Private
Drainage – Septic tank
Electricity – Mains
Heating – Oil fired central heating from the Rayburn and woodburning stoves
Telephone – Openreach Connection https://checker.ofcom.org.uk/
Broadband – Openreach Connection https://checker.ofcom.org.uk/
Mobile Availability - https://checker.ofcom.org.uk/
Council Tax Band - G
EPC – E44
Local Authority
West Devon Borough Council, Kilworthy Park, Tavistock, PL19 0BZ 01822 813600
Tenure
The property is offered for sale freehold with vacant possession on completion.
Viewing Arrangements
Strictly by appointment with D. R. Kivell Country Property 01822 810810.
Agent's Notes
None of the services or appliances, plumbing, heating or electrical installations have been tested by the selling agent. Any maps used on the details are to assist identification of the property only and are not an indication of the actual surroundings, which may have changed since the map was printed. None of the statements contained in these particulars as to this property are to be relied on as statements or representations of fact. There are numerous power points throughout the property although not individually listed. All figures, measurements, floor plans and maps are for guidance purposes only. They are prepared and issued in good faith and are intended to give a fair description of the property but do not constitute any part of any offer or contract. The property is sold subject to and with the benefit of all outgoings, rights of way, easements and wayleaves there may be, whether mentioned in these general remarks and stipulations or particulars of sale or not.
Viewing
Please contact us on 01822 810810 if you wish to arrange a viewing appointment for this property, or require further information.
Disclaimer
D. R. Kivell Country Property endeavour to maintain accurate depictions of properties in Virtual Tours, Floor Plans and descriptions, however, these are intended only as a guide and purchasers must satisfy themselves by personal inspection.
Most characterful 6 bedroom house with annexe potential in a quiet rural, easily accessible location. Lawned and landscaped gardens. Substantial traditional stone barn. Far reaching countryside views.
The property is located in the rural hamlet of Dunterton, 2 miles west of Milton Abbot village, where there is a public house and primary school. The historic stannary town of Tavistock is 9 miles to the southeast and Launceston is approximately 5 miles to the northwest. Plymouth is 23 miles to the southeast offering a comprehensive range of shopping, leisure facilities with cross channel ferry. Exeter is 45 miles to the East and provides access to the M5, international airport and a fast train to London Paddington.
The House
Dunterton Barton occupies a quiet rural location with far reaching countryside views over the picturesque valley to Cornwall and Caradon Hill in the distance. The house offers spacious, most characterful family accommodation and the many character features include, slate flagstone floors, inglenook fireplaces, beamed ceilings and benefits from wood effect uPVC double glazed windows, oil fired central heating, woodburning stoves. The accommodation briefly comprises; Entrance porch, slate flagstone floor, granite trough, slate shelves. Entrance Hall / Sitting Room; slate floor, inglenook fireplace, woodburning stove and bread oven, window to the front with deep sill window seat, steps lead up to the studio. Sitting / Dining room; slate floor, beamed ceiling, large inglenook fireplace, oil fired Rayburn Nouvelle also providing domestic hot water and central heating, window to the conservatory with deep sill window seat. Kitchen; Slate flagstone floor, window the front overlooking the courtyard, beamed ceiling, fitted wall and base units under a polished granite worksurfaces, Britannia gas range cooker, extractor hood above, built in microwave, dishwasher, pantry / former dairy, a dual aspect room, slate flagstone floor, original slate shelving with cupboards below, fitted wall cupboards, central slate island table. Sitting Room; Inglenook fireplace and woodburning stove, beamed ceiling, window to the rear with deep sill window seat. Conservatory: The triple aspect conservatory is a real sun trap, double glazed windows enjoying far reaching views over the garden to the tors of Bodmin moor, French doors open onto the stone paved patio. Inner Hall; stairs to the first floor doors to the conservatory, sitting / dining room and further door to; Shower Room; shower enclosure, wash basin and w/c, Utility; Window to the side, Belfast sink, plumbing for washing machine, filtration for the private water supply. Studio / Sitting Room; dual aspect room with windows to the front and rear, multi-fuel burning stove, staircase rises to the first floor. Bedroom and seating area; dual aspect with window to the rear overlooking the garden and windows and door opens onto the path at the side of the house with far reaching views over the surrounding farmland to Dartmoor. Exposed ‘A’ frames and beams, wash hand basin and spiral staircase rises to the mezzanine area. From the Entrance Hall a staircase rises to a split level first floor. Bedroom 2; Window to the front courtyard, fitted wardrobes and exposed beams. Bedroom 1; Feature cast iron fireplace and surround, fitted wardrobes, window to the rear. Bedroom 3; Feature cast iron fireplace with decorative surround and window to the rear overlooking the garden, walk through passage way to Bedroom 4 and airing cupboard. Family Bathroom; Vanity unit with inset wash basin, bath, w/c, bidet, exposed beams and window to the front. Bedroom 4; Feature cast iron fireplace and surround, exposed ceiling beams, mezzanine storage area and window the side enjoying far reaching countryside views. Bedroom 5; Exposed ceiling beams and window the rear and landing and second staircase descends the inner hall.
Outside
The property is accessed over a shared entrance lane a gated entrance opens onto the cobbled courtyard, providing ample parking to the front of the barn and house. From the courtyard a path leads to the side of the house with lawn gardens and specimen shrubs and trees. Continuing to the rear lawned garden are borders stocked with flowering and evergreen shrubs and specimen trees. Steps lead down to the stone paved patio, front of the conservatory, ideal for the alfresco dining and entertaining whilst taking in the far-reaching views over the surrounding countryside to the tors of Bodmin moor beyond.
Buildings
Stone Barn: (11.58m x 4.84m (37'11" x 15'10" ))
Traditional stone construction
The ground floor is divided into 3 sections with cobbled floors:
Section 1:
Wooden stable door and uPVC double glazed windows to the front elevation.
Section 2:
Window opening to the rear and stables doors to the front elevation.
Section 3:
Log store, stable door to the front elevation.
On the first floor; Accessed from the steps to the side, large loft area, windows to the front and side
Traditional Barn: (4.65m x 2.75m (15'3" x 9'0" ))
Single Storey stone barn.
Services & Information
Water – Private
Drainage – Septic tank
Electricity – Mains
Heating – Oil fired central heating from the Rayburn and woodburning stoves
Telephone – Openreach Connection https://checker.ofcom.org.uk/
Broadband – Openreach Connection https://checker.ofcom.org.uk/
Mobile Availability - https://checker.ofcom.org.uk/
Council Tax Band - G
EPC – E44
Local Authority
West Devon Borough Council, Kilworthy Park, Tavistock, PL19 0BZ 01822 813600
Tenure
The property is offered for sale freehold with vacant possession on completion.
Viewing Arrangements
Strictly by appointment with D. R. Kivell Country Property 01822 810810.
Agent's Notes
None of the services or appliances, plumbing, heating or electrical installations have been tested by the selling agent. Any maps used on the details are to assist identification of the property only and are not an indication of the actual surroundings, which may have changed since the map was printed. None of the statements contained in these particulars as to this property are to be relied on as statements or representations of fact. There are numerous power points throughout the property although not individually listed. All figures, measurements, floor plans and maps are for guidance purposes only. They are prepared and issued in good faith and are intended to give a fair description of the property but do not constitute any part of any offer or contract. The property is sold subject to and with the benefit of all outgoings, rights of way, easements and wayleaves there may be, whether mentioned in these general remarks and stipulations or particulars of sale or not.
Viewing
Please contact us on 01822 810810 if you wish to arrange a viewing appointment for this property, or require further information.
Disclaimer
D. R. Kivell Country Property endeavour to maintain accurate depictions of properties in Virtual Tours, Floor Plans and descriptions, however, these are intended only as a guide and purchasers must satisfy themselves by personal inspection.
Features
- 5 Bedroom character house
- 5 Reception Rooms
- 1 Bedroom studio annexe / guest suite
- Substantial Traditional Stone Barn
- Lawn and landscaped gardens
- Far reaching countryside views
- Easily accessible location
- No onward chain
Share

