Details
Tamerton Foliot
Plymouth - Devon
£775,000
(Sale Agreed)
Description
Period 4 bedroom house in 3 acres. Rural, easily accessible location within close proximity of the moors and Plymouth. Traditional barns, general purpose buildings, gardens, paddocks, wildlife lake. No onward chain.
Great Trehills is in a quiet rural location 1 mile southeast of the popular village of Tamerton Foliot, which has a general store and post office, two public houses, take away, restaurant, Primary and Nursery School. Roborough is 2 miles east and offers village shop, post office, supermarkets, veterinary surgery and pre-school. Plymouth is 6 miles south, with train and coach stations providing regular national services and access to the A38 dual carriageway.
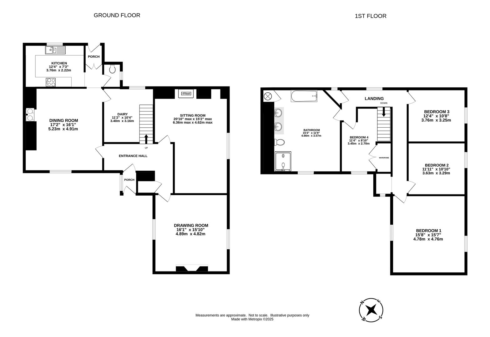
Great Trehills has a most appealing and characterful period 4 bedroom, 3 reception room, Grade II listed country house which is believed to date back to the early 18th Century and is the first time on the market for 100 years. The delightful and welcoming accommodation provides comfortable and flexible family living with an array of period and character features and briefly comprises: Entrance Hall; decorative Victorian tiled floor, staircase to first floor, built in storage cupboard. Sitting room; Inglenook fireplace, clome oven, woodburning stove, window to side with deep sill window seat. Drawing Room; a dual aspect room overlooking the front courtyard garden and grounds to the side. Dining Room; slate tiled floor, beamed ceiling, Inglenook style fireplace, oil fired Rayburn with a back boiler, window overlooking the front garden with deep sill window seat. Dairy; slate flagstone floor, beamed ceiling, window overlooking the rear courtyard. Rear entrance hall; slate flagstone floor and door to rear courtyard. Kitchen; fitted wall and base units, space and plumbing for a washing machine and dishwasher, built in electric oven and hob, extractor above, window overlooking the rear courtyard. Cloakroom; W/C. On the first floor: Landing; window to the rear overlooking the courtyard. Bedroom 3; a double room, window to the side. Bedroom 2; double room window to the side. Bedroom 1; a double dual aspect room with windows overlooking the front courtyard garden and grounds to the side. Bedroom 4; window to the front courtyard garden, built in wardrobe. Family Bathroom; Recently installed new bathroom suite: bath, double wash hand basins in a vanity unit, w/c, large shower cubicle with electric shower and built in airing cupboard, window to the front.
Gardens
From the road a gated entrance opens onto a tarmacadam driveway opening onto a large parking and storage area. Flanked on either side by a large shrub and flowerbed border and a grass terrace interspersed with a variety of Rhododendrons, flowering shrubs and trees. At the front of the house is an enclosed courtyard garden which is mainly lawn with well stocked flowerbed borders. At the rear of the house is a granite cobbled courtyard which is ideal for alfresco dining and entertaining. Across the entrance drive is a lawned terrace with ample recreation space with potential to create a tennis court / football pitch or paddock.
Garden Room / Store (7.00m x 2.96m (22'11" x 9'8"))
Slate flagstone floor and two windows to the front.
Workshop store (5.55m 5.21m (18'2" 17'1" ))
Potential to create an annexe
Traditional Barn (18m x 5m - 17.3m x 6.25m (59'0" x 16'4" - 56'9" x)
A substantial and impressive ‘L’ shaped traditional barn with potential to conversion, extending to approximately 370 m/sq (4000 sq/ft) over two floors.
Carport / Machinery Store (8.41m x 4.92m (27'7" x 16'1" ))
Adjoining General Purpose/ Storage Building (8.84m x 8..46m (29'0" x 26'2".150'11" ))
Garage / Workshop: (8.25m x 4.75m (27'0" x 15'7"))
The Land
The paddock extends to approximately 1.5 acres with a wildlife lake in the centre, enclosed within traditional Devon bank hedging and post and wire fencing.
Services & Information
Water – Mains (free of charge)
Drainage – Septic tank
Electricity – Mains
Heating – Night Storage Heaters, Hot water – Oil Fired Rayburn & Electric Immersion
Telephone & Broadband – Open Reach Connection (Airband available subject to survey)
Mobile Availability - checker.ofcom.org.uk
Council Tax Currently Band - D
EPC – Listed
Local Authority
South Hams District Council, Follaton House, Plymouth Road, Totnes, Devon, TQ9 5NE
Tenure
The property is offered for sale freehold with vacant possession on completion, subject to a positive covenant uplift clause (expires December 2029)
Viewing Arrangements
Strictly by appointment with D. R. Kivell Country Property 01822 810810.
Viewing
Please contact us on 01822 810810 if you wish to arrange a viewing appointment for this property, or require further information.
Disclaimer
D. R. Kivell Country Property endeavour to maintain accurate depictions of properties in Virtual Tours, Floor Plans and descriptions, however, these are intended only as a guide and purchasers must satisfy themselves by personal inspection.
Period 4 bedroom house in 3 acres. Rural, easily accessible location within close proximity of the moors and Plymouth. Traditional barns, general purpose buildings, gardens, paddocks, wildlife lake. No onward chain.
Great Trehills is in a quiet rural location 1 mile southeast of the popular village of Tamerton Foliot, which has a general store and post office, two public houses, take away, restaurant, Primary and Nursery School. Roborough is 2 miles east and offers village shop, post office, supermarkets, veterinary surgery and pre-school. Plymouth is 6 miles south, with train and coach stations providing regular national services and access to the A38 dual carriageway.
Great Trehills has a most appealing and characterful period 4 bedroom, 3 reception room, Grade II listed country house which is believed to date back to the early 18th Century and is the first time on the market for 100 years. The delightful and welcoming accommodation provides comfortable and flexible family living with an array of period and character features and briefly comprises: Entrance Hall; decorative Victorian tiled floor, staircase to first floor, built in storage cupboard. Sitting room; Inglenook fireplace, clome oven, woodburning stove, window to side with deep sill window seat. Drawing Room; a dual aspect room overlooking the front courtyard garden and grounds to the side. Dining Room; slate tiled floor, beamed ceiling, Inglenook style fireplace, oil fired Rayburn with a back boiler, window overlooking the front garden with deep sill window seat. Dairy; slate flagstone floor, beamed ceiling, window overlooking the rear courtyard. Rear entrance hall; slate flagstone floor and door to rear courtyard. Kitchen; fitted wall and base units, space and plumbing for a washing machine and dishwasher, built in electric oven and hob, extractor above, window overlooking the rear courtyard. Cloakroom; W/C. On the first floor: Landing; window to the rear overlooking the courtyard. Bedroom 3; a double room, window to the side. Bedroom 2; double room window to the side. Bedroom 1; a double dual aspect room with windows overlooking the front courtyard garden and grounds to the side. Bedroom 4; window to the front courtyard garden, built in wardrobe. Family Bathroom; Recently installed new bathroom suite: bath, double wash hand basins in a vanity unit, w/c, large shower cubicle with electric shower and built in airing cupboard, window to the front.
Gardens
From the road a gated entrance opens onto a tarmacadam driveway opening onto a large parking and storage area. Flanked on either side by a large shrub and flowerbed border and a grass terrace interspersed with a variety of Rhododendrons, flowering shrubs and trees. At the front of the house is an enclosed courtyard garden which is mainly lawn with well stocked flowerbed borders. At the rear of the house is a granite cobbled courtyard which is ideal for alfresco dining and entertaining. Across the entrance drive is a lawned terrace with ample recreation space with potential to create a tennis court / football pitch or paddock.
Garden Room / Store (7.00m x 2.96m (22'11" x 9'8"))
Slate flagstone floor and two windows to the front.
Workshop store (5.55m 5.21m (18'2" 17'1" ))
Potential to create an annexe
Traditional Barn (18m x 5m - 17.3m x 6.25m (59'0" x 16'4" - 56'9" x)
A substantial and impressive ‘L’ shaped traditional barn with potential to conversion, extending to approximately 370 m/sq (4000 sq/ft) over two floors.
Carport / Machinery Store (8.41m x 4.92m (27'7" x 16'1" ))
Adjoining General Purpose/ Storage Building (8.84m x 8..46m (29'0" x 26'2".150'11" ))
Garage / Workshop: (8.25m x 4.75m (27'0" x 15'7"))
The Land
The paddock extends to approximately 1.5 acres with a wildlife lake in the centre, enclosed within traditional Devon bank hedging and post and wire fencing.
Services & Information
Water – Mains (free of charge)
Drainage – Septic tank
Electricity – Mains
Heating – Night Storage Heaters, Hot water – Oil Fired Rayburn & Electric Immersion
Telephone & Broadband – Open Reach Connection (Airband available subject to survey)
Mobile Availability - checker.ofcom.org.uk
Council Tax Currently Band - D
EPC – Listed
Local Authority
South Hams District Council, Follaton House, Plymouth Road, Totnes, Devon, TQ9 5NE
Tenure
The property is offered for sale freehold with vacant possession on completion, subject to a positive covenant uplift clause (expires December 2029)
Viewing Arrangements
Strictly by appointment with D. R. Kivell Country Property 01822 810810.
Viewing
Please contact us on 01822 810810 if you wish to arrange a viewing appointment for this property, or require further information.
Disclaimer
D. R. Kivell Country Property endeavour to maintain accurate depictions of properties in Virtual Tours, Floor Plans and descriptions, however, these are intended only as a guide and purchasers must satisfy themselves by personal inspection.
Features
- 4 Bedroom Period House
- Character Grade II Listed
- 3 Reception Rooms
- Barns with Potential
- General Purpose Buildings
- Paddock
- Wildlife Lake
- 3 Acres
Share

